'Young people won’t be able to afford the homes': Concerns raised over major Church Stretton housing development
Councillors raise concerns over housing for young people at a major development in Church Stretton
Councillors are concerned that a major development in Church Stretton will not deliver homes that young people would be able to afford.
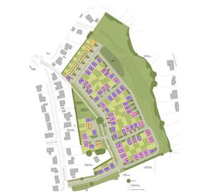
Northern Trust Land Limited has submitted an outline planning application for up to 75 properties on land east of Chelmick Drive. If approved, it would result in a bungalow being demolished to accommodate the proposed access.
The site, known as Snatchfield Farm, measures 4.16 hectares and is currently used as grazing land. It hosts a small number of disused farm buildings and equipment.
In the design and access statement, Simon Handy, of agents Pegasus Group, said the proposals are informed “by a thorough and ongoing understanding of the site’s locale.” He said that all scattered trees will be retained, with the most notable being a large oak.
From the new access point, a 5.5 metre wide road will run part way along the site’s southern boundary before forming a loop road, which is parallel to the existing bridleway.
Narrow link roads will connect the longer leds of the loop, added Mr Handy, with shorter separation distances between the houses.

“These link roads will have more of a village-like feel than the rest of the development,” said Mr Handy.
The mix of housing “has been carefully considered”, the agent confirmed, with 42 being three-bed, 17 four-bed, and 16 two-bed.
Mr Handy said that 50 of the 75 houses will be put up for market sale, with the remaining 25 being affordable homes – 10 that are social rent, and 15 intermediate. The tenures will evenly distributed throughout the development, said Mr Handy.

However, the Mayor of Church Stretton, Councillor Andy Munro, said he is worrried that the homes won’t be affordable for young people in the town, especially as no viability assessment has been done.
“When the developer buys the land from Northern Trust, the first thing they will do is do is a viability assessment,” said Cllr Munro.
“They will say that is a very difficult site and it’s not possible, so will then move that element.”

Typically, an affordable home is priced at least 20 per cent below local market rates. However, Cllr Munro said the average price of a four-bedroom house in Church Stretton is £525,000, meaning that an “affordable home” in the town is £420,000. He added that a flat/maisonette priced between £150,000 and £200,000 is still a lot of money for a young couple who are looking to buy their first home.
“What I would like to see is we actually explore the number of rural exceptions, and build good homes which will only ever be for rent,” saiud Cllr Munro.

Councillor Mark Morris, who represents The Strettons, confirmed he has “called in” the application, meaning it will be determined by the Southern Planning Committee.
“There are a lot of concerns by residents, and I feel it needs a fair hearing,” said Cllr Morris.
“The access is off Clive Avenue, where two cars have difficulty to pass. And then it will go through two estates with a demolition of one of the bungalows.
“I don’t feel they will be able to sustain the amount of affordable housing that they’ve quoted. The town will end up with more types of houses that we don’t need. I believe there are more suitable places to build around the town.”
At a meeting on Tuesday evening (February 24) members unanimously voted in favour for the town council to submit an objection to the proposal. At the time of writing, 157 of the 164 comments lodged on Shropshire Council’s planning portal (reference 26/00328/OUT) are against the scheme.





