Gull wing-shaped solar panels for Telford hospital car park approved
Planners have given the green light for ‘gull wing-shaped’ solar panels to be placed over cars parked in spaces at the Princess Royal Hospital in Telford.
ZLC Energy, of Liskeard in Cornwall, has been told that prior approval is not required for the development after Telford & Wrekin Council planners asked several questions about the proposals.
The questions included whether the panels would be more than 4m in height, whether they would be close to residential properties and whether they would cause a problem with glare.
The nearest other property to the site is Severn Hospice which was included as a consultee alongside Hadley & Leegomery Parish Council, borough councillor Karen Blundell and the Shropshire Fire and Rescue Service.

The only response recorded on the council’s website was from the fire service which issued a standard request that consideration should be given to information contained within the service’s Fire Safety Guidance for Commercial and Domestic Planning Applications.
In its decision letter the council confirmed that “prior approval is not required for the solar canopy’s siting, design and external appearance”.
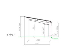
The shelter-like structures would be held up by posts in the centres of rows of spaces at Princess Royal Hospital.
The panels would be sited on the car park to the northwest of the hospital where the closest ‘neighbour’ is Severn Hospice.
The Shrewsbury and Telford Hospitals NHS Trust, which runs the Princess Royal Hospital, has secured some £17 million for various green projects.
The trust is utilising LED lighting, electric vehicle points, greener travel options, and recycling.





