Former Shropshire 'bone works' to go under the hammer - with planning permission and canal mooring rights
A "rare and characterful" former bone works along the Montgomery Canal is going under the hammer later this month.
The former bone works - or artificial manure works - at Maesbury Marsh near Oswestry is set to go up for auction at the end of February.
The canal-side site, which produced fertiliser by crushing animal bones, dates back to the 1860s but was located on the site of an older smelting works.
Production of fertiliser continued at the site until the early 1890s when the business moved to Rednal.

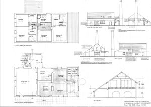
In 2023, plans to convert the former mill into a four-bedroom family home were revealed and eventually approved.
The planning appication, submitted to Shropshire Council, said the building was "no longer fit for the purpose for which it was designed" and needed "significant repairs to ensure its long-term future".
Now, the historic site is going under the hammer, with around nine months remaining on the planning permission.
A spokesperson for agents, Halls, said the "rare and characterful former bone works" offered "a distinctive opportunity to create a bespoke home in an attractive setting".

They added: "The property comprises a former bone works, offering a rare and highly individual self-build opportunity set within an attractive semi-rural position.
"Extending to approximately 0.28 acres, the site includes an allocated garden area and enjoys a particularly appealing setting adjacent to the canal, with the benefit of single mooring rights, adding a unique lifestyle element rarely found with residential building plots.

"The existing brick-built structures and chimney stack reflect the site’s industrial heritage and contribute to its distinctive character, while the approved consent presents an exciting opportunity to create a bespoke family home in a waterside setting, subject to the approved plans and remaining planning period."
The site is set to go under the hammer on February 27 with an auction guide price of £112,500. The full listing and more information is available to view online at hallsgb.com





