Outline plans for 33 new homes in village near Shrewsbury
Up to 33 homes could be built in a village near Shrewsbury.
Shingler Homes Ltd has submitted an outline planning application for the residential development to the west of St Annes Way in Hanwood, southwest of Shrewsbury.
A design and access statement provided by planning consultant Nigel Thorns said it is assumed that the reserved matters application would relate to 33 dwellings. The site is part of a larger field on the western edge of Hanwood.

To the north is agricultural land, leading down to the Rea Brook.

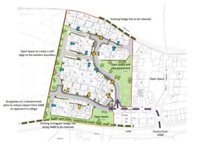
On the eastern boundary lie the side and rear gardens of properties fronting St Thomas Close and St Annes Road, while in the southeastern corner is a Severn Trent pumping station and the access road.
Mr Thorns set out what he said the benefits of the scheme would be:
“Provide a sustainable form of development with a layout/design/materials which contribute to the character and setting of the village and respect the setting of the existing built development around the site
“Create a quality built development including positive frontages within the site towards internal access roads and areas of open space
“Create suitable areas of open space area within the site
“Create a new soft western edge to the settlement, sensitive to its relationship with Cruckmeole
“Contain the development to retain the green gap between Hanwood and Cruckmeole
“Utilise the existing access route running into St Annes Way from the A488
“Retain the existing boundary hedge line along the A488 to retain the rural feel of the site and to minimise the visual intrusion of the development
“Provide suitable garden and parking areas to cater for the needs of future residents.”
The plans can be viewed on Shropshire Council’s online planning portal (reference 26/00184/OUT). The consultation period ends on February 23.





